![]() |
|||||||||||||||||||||||||||||||||||||||
|
|
|
|
|
|
|
||||||||||||||||||||||||||||||||||
| Projekte | Referenzen | About | Kontakt | Impressum | Links | Home | |||||||||||||||||||||||||||||||||
![]() |
|||||||||||||||||||||||||||||||||||||||
| Schloss Wolfurt, Nordansicht | Schloss Wolfurt, Südwestansicht | ||||||||||||||||||||||||||||||||||||||
![]() |
|||||||||||||||||||||||||||||||||||||||
| Schloss Wolfurt, Erdgeschoss | |||||||||||||||||||||||||||||||||||||||
![]() |
|||||||||||||||||||||||||||||||||||||||
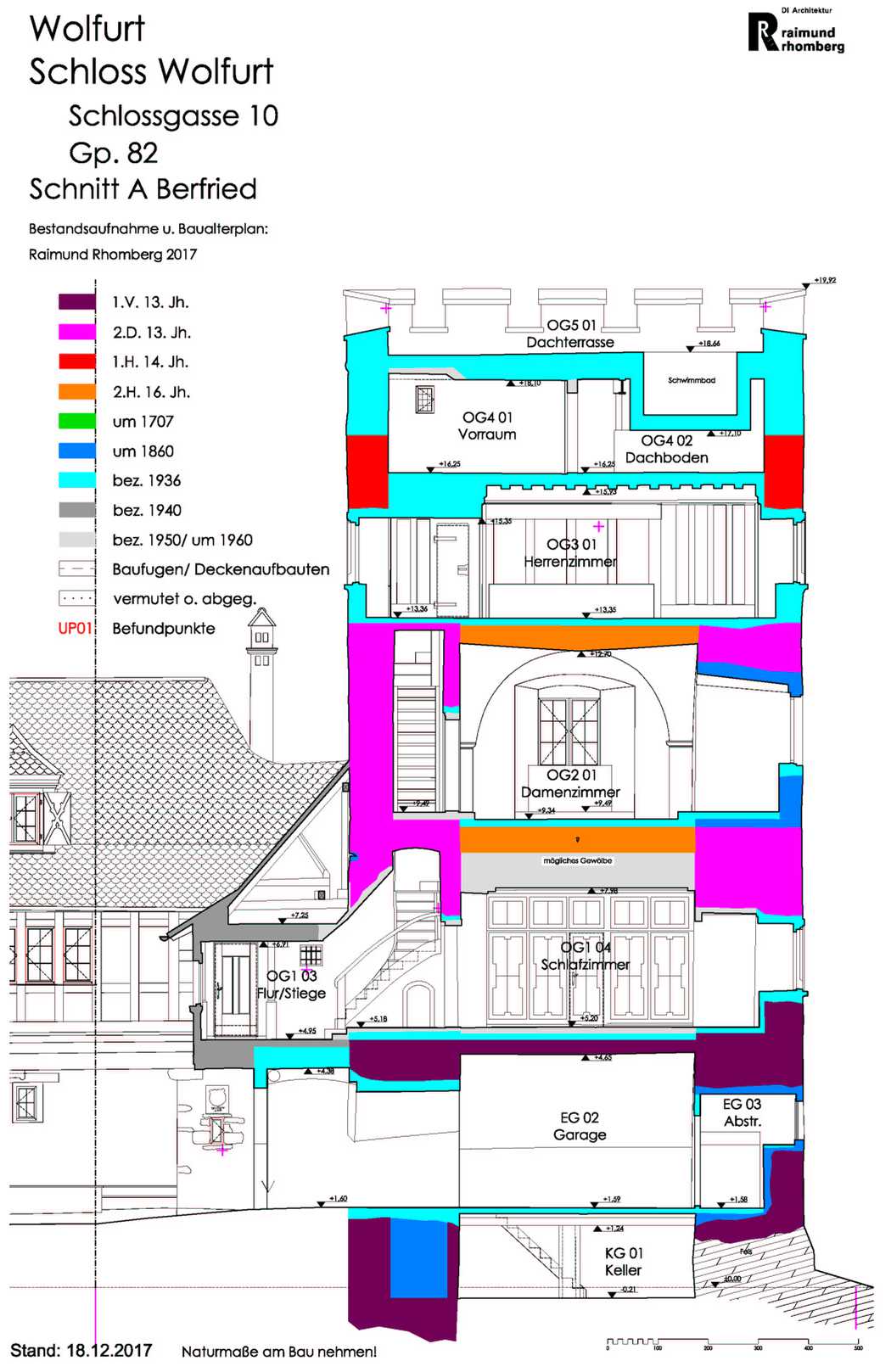
| Schloss Wolfurt, Schnitt Bergfried, Ostansicht | Schloss Wolfurt, Südwestansicht Hof | ||||||||||||||||||||||||||||||||||||||
| Nordansicht | |||||||||||||||||||||||||||||||||||||||
|
|
|||||||||||||||||||||||||||||||||||||||