![]() |
||||||||||||||||||||||||||||||||||||||||
|
|
|
|
|
|
|
|||||||||||||||||||||||||||||||||||
| Projekte | Referenzen | About | Kontakt | Impressum | Links | Home | ||||||||||||||||||||||||||||||||||
![]() |
![]() |
|||||||||||||||||||||||||||||||||||||||
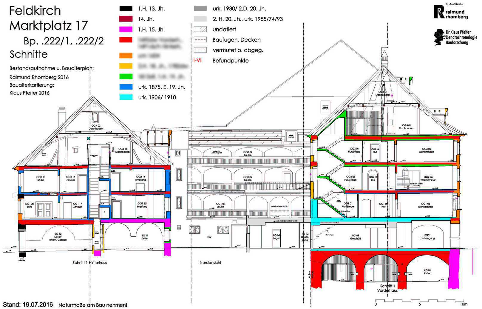
| Marktplatz 17, Feldkirch, Längsschnitt gegen Nord | Marktplatz 17, Feldkirch, Fensterdetail | |||||||||||||||||||||||||||||||||||||||
| Marktplatz 17, Feldkirch, Erdgeschoss | ||||||||||||||||||||||||||||||||||||||||
![]() |
||||||||||||||||||||||||||||||||||||||||
| Marktplatz 17, Feldkirch, Dachgeschoss | ||||||||||||||||||||||||||||||||||||||||
| Marktplatz 17, Feldkirch, Ostansicht; Detail Westansicht | Marktplatz 17, Feldkirch, Westansicht | |||||||||||||||||||||||||||||||||||||||
|
|
||||||||||||||||||||||||||||||||||||||||